Following the recent public consultation on the proposed residential development for land west of Moorsfield Avenue and Tollgate Drive, please note that Muller Proper Group has made some changes to the masterplan.
Key revisions include:
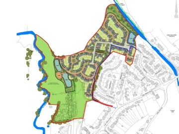
Revised Access Proposals: A second access point via Moorsfield Avenue has been added to the scheme.
Parking Provision: Eight extra parking spaces, including one disabled bay, have been added adjacent to the public open space.
Layout Adjustments: The site layout has been modified as per the attached master plan. Separation distances have been increased, and additional tree planting introduced.
Connectivity: An informal footpath has been added through the Country Park.
Further details can be seen here: Home – Muller Property Group | Moorsfield Avenue
If you have any questions about the changes please contact Muller Property Group at:
contact@moorsfieldavenue.co.uk
0800 788 0900
Monday to Friday: 9:00am to 5:30pm
Ref: Moorsfield Avenue Consultation, Muller Property Group, The Point, Crewe Road Alsager, Crewe Cheshire, ST7 2GP
If you have any questions about the planning process or the role of the Parish Council please do not hesitate to contact the Parish Clerk at parishcouncil@audlempc.co.uk

The village of Audlem is part of the unitary authority of Cheshire East.